关键字搜索:

大兴北臧村厂库房出租

点击量:954次 置顶 发布时间:2014/8/1
信息描述
信息标题: 大兴北臧村厂库房出租 信息编号: 2014/8/1144017868
信息类型: 住宿/ 办公/ 独院/ 土地/ 库房/ 厂房 参考价格: 面议
区域位置: 北京 | 大兴 面积描述: 14000 M2
联系方式: 13910429989
发布期限: 正常 还剩0天
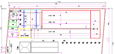
   位于北藏村镇罗奇营村附近 或南六环里、京良路北。
现状:钢结构加工车间,配套办公室、宿舍、食堂。400KVA变压器

包括:

    1、天车车间9000平米,层高10米

    2、办公室800平米

    3、宿舍1000平米

    4、食堂330平米

    5、其他约3000平米

作为厂房或库房出租均可

联系时请您一定说明是在中国厂库房网上看到的此信息,此信息若过期,请予下方留言,谢谢合作!

厂房 库房 厂房出租 库房出租 北京厂房出租 北京库房出租 厂库房出租 厂库房出售 独院出售 土地出让 中国厂库房网

图片展示
网友评论
您好!您未登录,请登录后发表评论![ 登陆 ]
验证码: 
关于我们 | 广告布局 | 免责声明 | 网站地图 | 联系我们 | 服务条款 | 友情链接申请
  • 广告刊登电话:13910429989   24小时电话:13910429989
  • 版权所有:厂库房网(www.zgckf.com) CopyRight©2009-2020
  • 网站备案:京ICP备09092624号-1
  • 关闭
    网站广告部
    点击这里给我发消息
    网站管理员
    发布房源|需求